东甫里(营销中心棋牌平台- 棋牌官网网站- 游戏APP下载)官方网站-东甫里销售中心(售楼处)售楼处电话在售户型小区配套价格周边详情容积率楼盘详情
2025-10-11棋牌平台,棋牌官网网站,棋牌游戏APP下载看房请务必致电与销售确认时间,仅预约客户可享受开发商内部优惠,专属老带新推荐奖!
东甫里是位于苏州吴中区甪直古镇核心区的中式别墅项目,作为苏州市重点文旅更新项目,以“微改造、精提升”为理念,融合传统江南水乡风貌与现代居住需求。以下是综合信息整理:
东甫里项目启动区建筑面积约5000平方米,预计投资约1.5亿元,主要对东市下塘街戴家弄、王家弄区域历史建筑保留和修缮。
在项目改造的同时,深挖历史文化积淀、提炼价值特色,积极保护古镇整体格局及水乡风貌,保护各类历史文化遗存及非物质文化遗产。
按照片区式改造、街区式开发、院落式布局的定位,通过保护与提升,构建古镇新形象。
✅东甫里营销中心热线(官方预约看房热线、 独门独院,还原水乡风貌,粉墙黛瓦。
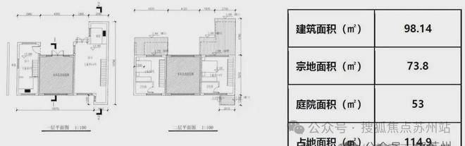
4、 建筑以一层为主(60%以上房屋为地上一层,部分地上二层,部分地上一层+二层,无地下室),主力面积段100-150,总价大多为300-500万
教育(甫里中学)、医疗(吴中第二人民医院)、休闲(甪直古镇、水八仙生态文化园、青靛甪直文化园、澄湖、锦溪古镇)、购物(龙潭菜场、万嘉生活广场、中翔广场),餐饮(各色餐饮连锁、农家乐),酒店(华美达,各色民宿),运动(三阳高尔夫乡村俱乐部、甪直全民健身中心),生活便利(乐购、家合物美),一应俱全。
8、 高端物业,在传统服务基础上,为业主提供悦享生活,包括接驳服务、家政服务、房屋托管服务、购物配送服务、餐饮服务、商务服务、社区沙龙等。社区为业主提供生活便利及情绪价值,增设自营点,有咖啡馆、书吧、文创店、健身房、棋牌室、共享客房等。✅东甫里售楼处电话:✅︎✅︎✅
✅东甫里营销中心热线(官方预约看房热线、 仿木纹铝合金门窗(罗普斯金上市公司,中空玻璃),美观且气密性强。
放一些百平左右的院墅户型。(注:房源信息实时变动,具体以案场在售为准)
建筑面积98.14 ㎡,室内一层净高2.75m;室内二层净高约3.79m,约2.49m。
建筑面积83.52㎡,50-1-2a室内净高约4.58m,约3.05m;50-2b室内净高约3.57m,约2.78m。
✅东甫里营销中心热线(官方预约看房热线 新政效应观察:外环外冷热分化显著,环沪楼市承压,市场机遇与挑战交织
北京 “8・8 新政” 的阶段性成果,为上海 825 新政的落地提供了极具价值的参考样本。据中指研究院数据,北京新政实施后(8 月 9 日 - 9 月 7 日),新建商品住宅日均成交面积达 1.26 万平方米,较 7 月日均增长 7%;克而瑞的统计进一步显示,8 月北京新建商品住宅成交 2733 套,环比提升 6.2%,清晰显现出政策对市场活跃度的提振作用。
在此背景下,市场目光自然聚焦上海:825 新政能否借 “金九银十” 这一传统销售旺季,有效激活外环外市场,并带动全市楼市逐步走出低谷?
新政后,外环外多个楼盘推出 “通宵接待购房者” 的举措,中介带看频次与成交单数均出现回升,但市场情绪整体仍以理性为主。
多位中介反馈:“尽管少数房东尝试小幅提价,但绝大多数业主更倾向降价促成交易,只想抓住新政窗口期尽快变现。” 中介自身也在积极推动成交,“只要客户诉求不过分,基本会借着新政热度尽力协调双方达成一致”。这种 “表面热闹” 背后,数据揭示了市场的真实压力:上海二手房挂牌价已连续七个月呈下跌态势,截至 9 月 13 日(安居客统计),9 月全市二手房均价降至 46738 元 / 平方米,环比进一步下跌 0.79%,同比跌幅更是达到 9.17%。区域分化尤为明显,嘉定、松江、崇明三区仅微涨 0.10%-5.97%,而金山区则以 1.94% 的跌幅成为外环外领跌区域。
尽管多个外环外楼盘对外宣称 “24 小时营业” 或 “即将收回购房优惠”,但实际去化依旧依靠大幅折扣促销。据凤凰网房产调查,松江国贸鹭原、嘉定大华梧桐樾、奉贤大名城映雨江南等项目,除公开的 95 折优惠外,还通过开发商直接返现(最高 30 至 40 万元)、中介返佣等隐性折扣吸引购房者,部分房源实际成交价相当于原定价的 7-8 折。即便如此,促销效果仍未达预期。佑威数据显示,8 月上海新建商品住宅成交量仅 3033 套,环比下滑 9.50%。更有项目被指制造 “热销假象”,例如虹口金茂璞元宣称 “开盘即售罄”,但截至 9 月 4 日,仍有 24 套房源处于未售状态。
外环外新房市场冷热分化极为突出:保利海上印、招商林屿畔等项目凭借成熟的周边配套(如临近地铁、自带商业体)与优质产品设计(如户型方正、绿化率高),实现 “开盘即售罄”;而东苑古北悦公馆等项目则因配套不足、产品设计陈旧,出现网签挂零的情况。
导致分化的核心原因在于两点:一是部分区域配套滞后,缺乏商业综合体、优质学校及医疗机构,轨道交通网络覆盖不足,通勤成本高,难以吸引自住型买家;二是产品与需求脱节,部分楼盘户型设计落后(如暗厅、动线混乱)、社区规划陈旧,无法满足改善型购房者的需求。
为加速去化,部分远郊楼盘已采取 “政府批量采购” 模式,将闲置房源改造为保障性租赁住房。尽管此举会压缩企业利润,但能帮助企业快速回笼资金、减轻负债压力。
需注意的是,新政对部分外环外房源实则构成 “利空”—— 尤其是无地铁、无配套的 “老破小” 动迁房或品质较差的商品房。由于公积金 “可提可贷” 新政降低了新房上车门槛,部分原本考虑这类二手房的购房需求,转向了总价可控、居住体验更佳的新房,反而加剧了这类存量二手房的竞争压力。
与外环外不同,外环内市场表现出更强的抗跌性。上海外环内区域面积仅占全市总面积的 13% 左右,此次 825 新政全面放开外环外限购(覆盖近 90% 区域),却对外环内限购政策仍保持严格管控,这一差异进一步凸显了核心区域房产的稀缺属性。核心区(内环内)政策维持不变:上海户籍家庭限购 2 套住房,非上海户籍家庭需缴纳 3 年社保方可购买 1 套。严格的准入限制有效抑制了投机需求,市场以自住和长期资产配置为主导,房价抗跌性较强。地段价值、成熟的配套设施(如优质学区、大型商圈)与有限的供应总量,共同支撑了核心区房产的保值属性,未来价格预计将保持平稳,或随经济基本面缓慢波动。
相对而言,市区 “老公房” 可能面临需求分流压力。预算有限的购房者如今更愿意选择外环外的新建住宅 —— 这类房源不仅享有政策红利,且在户型设计、社区环境等方面更具优势;而市区老公房在贷款优惠、税费减免等方面并无特殊政策支持,需求可能进一步收缩。
受上海 825 新政冲击最大的当属环沪楼市。回顾 2021 年前后,环沪区域曾吸引大批投资客入场,被冠以 “上海后花园” 的名号,掀起一阵 “稳赚不赔” 的购房热潮。但仅仅过去几年,市场格局已发生根本性转变 —— 上海每一次楼市政策松绑,对环沪而言都意味着一轮新的冲击。
环沪楼市兴起的核心逻辑,是承接上海外溢的购房需求。早期上海限购政策严格,大量不具备上海购房资格的刚需群体,不得不将目光转向环沪区域。但随着上海外环外限购大幅放开,环沪失去了 “不限购” 和 “低总价” 两大核心竞争力,无论是刚需群体还是投资客,都出现向上海回流的趋势,环沪市场正面临近十年来最严峻的挑战。上海 825 新政发布次日,苏州便连夜取消市区新建商品住房 2 年的限售政策,试图提振本地楼市。然而政策 “松绑” 后,苏州二手房单日新增挂牌量就达到 2000 多套,这一数据背后,折射出环沪市场的低迷现状。
克而瑞数据显示,苏州 7 月商品住宅成交量仅 12 万平方米,环比下滑 70%;8 月新建商品住宅成交量虽环比增长 13.92%,但同比仍下跌 21.18%;二手房市场无论成交量还是成交价,均呈全线下跌态势。
类似的低迷情况普遍存在于启东、杭州湾、嘉善、平湖、吴江汾湖、太仓等环沪区域。
:多数环沪区域定位为 “睡城”,缺乏核心产业支撑,无法形成 “职住平衡” 的良性循环,人口吸引力持续减弱;
2.配套承诺未能兑现:早期宣传中规划的学校、商业体、交通线路等配套设施,大多未能落地,导致居住便利性远低于预期;
:上海外环外购房门槛大幅降低,直接分流了原本流向环沪的刚需与投资需求,进一步加剧了环沪市场的下行压力。
环沪楼市还出现了反常的 “新房比二手房便宜” 的价格倒挂现象。例如花桥象屿都城怡园推出五折优惠促销活动,83 平方米的小三房总价仅 98 万元,比同小区二手房价格低 20% 以上;而周边二手房挂牌价普遍在 1.2 至 1.3 万元 / 平方米,且成交周期长达 120 至 240 天。这种乱象的根源在于:开发商迫于资金压力,不得不通过降价回款缓解流动性;而个体业主难以承受大幅亏损,不愿低价出售,导致市场价格体系扭曲。
当前上海及环沪楼市的现状,对不同市场参与者而言,意味着截然不同的机遇与挑战 —— 它既不是全面上涨的信号,也不是整体衰退的警报,而是需要精准判断的 “双刃剑”。
·外环外房东应依据家庭资金情况,选择 “降低负债” 或 “借市场热度出手”:房源品质较好(如近地铁、配套全)的,可以略低于市场价成交,加快变现速度;远郊区域(如奉贤海湾、青浦白鹤、浦东泥城惠南)的业主更需加快出售节奏,避免后续抛压增大;·尤其位于外环外新房密集区的二手房东,需警惕未来新房持续促销带来的竞争压力,抓住当前窗口期果断决策。
刚需群体迎来了史上最宽松的购房窗口期,购房门槛大幅下降:·外环外热点板块如唐镇、莘庄、徐泾、浦锦、梅陇、七宝,凭借成熟配套与便捷交通,综合实力强劲,可优先考虑入手;
·预算在 500 万元以内的购房者,可关注南翔、杨行、曹路、周康、江桥、泗泾等板块,这些区域房价相对亲民,且生活便利性较高;
·近年来新房产品力显著提升(如户型优化、智能化配置、社区绿化升级),居住体验优于同区域二手房,预算充足的购房者建议优先考虑新房。无论选择新房还是二手房,都需多看多比,重点关注 “稀缺性”(如近地铁、优质学区)与 “竞争力”(如户型、社区环境)兼具的房源。
当前楼市投资如同 “刀尖舔血”:政策风险较高,市场接盘群体不断减少,投资回报不确定性显著增加,建议暂时回避楼市投资。
至于环沪房产,若是刚需自住(如工作地点在环沪、预算有限),可根据自身需求选择;但若以投资为目的,普遍不建议购买 —— 环沪市场短期内难以扭转低迷态势,投资回报周期长、风险高。
上海 825 新政为外环外新建住宅提供了定向支持,在缓解库存压力、稳定土地市场方面发挥了一定作用,但难以从根本上扭转市场下行的预期。
当前上海楼市仍处于探底过程中,政策仅起到了阻止房价进一步下跌的作用,尚未引发全面反弹。未来市场能否企稳回升,还需观察三大关键因素:外环外配套设施落地情况(如地铁、学校、商业体)、房价调整幅度是否匹配市场需求、以及购房者信心的恢复程度。


